市面上追求极简风格的超薄铝框玻璃门,被赋予“极窄铝框玻璃门”、“超薄金属门框”等网红定义,怎么理解“薄”的含义,通常“薄”主要指两个尺寸:
铝型材压制一体成型
见光面的型材尺寸,超窄、超薄、无边框指的就是这里
此处需要保有一定的厚度来作为整扇柜门的承重和受力
那么,市面上一套极限薄的铝框玻璃门,可能是由宽度5mm,深度20mm的铝型材,搭配 3~5mm厚的超白钢化玻璃组成,需注意:
01.型材越薄,宽度越窄,价格越贵,工艺要求也越高,但其承重和结构强度越低,不宜超2200mm(否则需要加厚铝材厚度)
02.玻璃必须选择钢化玻璃,首选超白玻(普通玻璃会泛绿)
03.五金配件专配“迷你铰链或窄边专用铰链”
10MM极窄铝制柜门+木饰面柜体画法
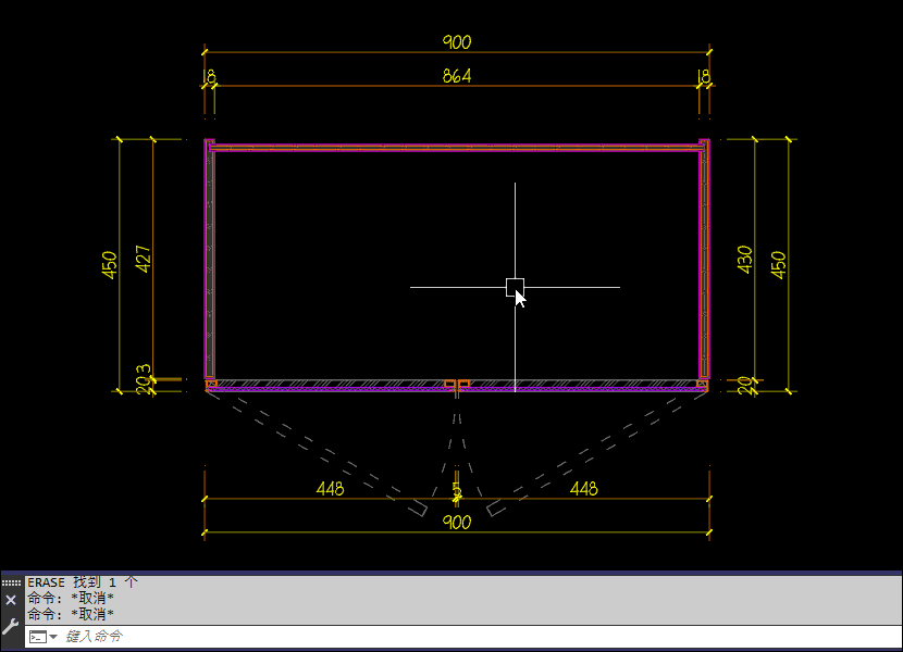
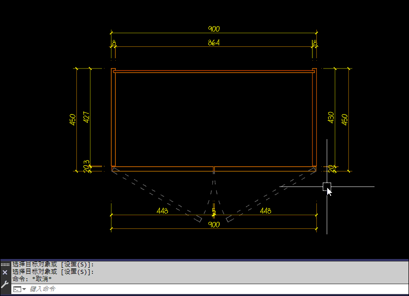
用GZZ绘制一个900mm长的内部构造柜子
S设置柜子板厚18,门缝5,侧板缝3;玻璃柜门厚度为20,生成外围尺寸QD,标注细节断开DB
TT将“打开门页虚线”暂时隐藏,BXG绘制窄边为10mm,框厚和内深为20的铝框
F批量倒角,J线条焊接,YH优化结构断点,极窄铝框WW镜像,SF生成看线,8空格改颜色
BLL设置S选择5厘玻璃绘制,
可预留4mm再右移2MM,则两边留2mm打胶;TC填充胶水,金属面,最后WW镜像即可
TT先把隐藏的柜门显示出来,CBB设置层板的收口方式,款选生成柜板
底板可以S拉伸为12厚,生成后B建块,再WQ快速遮罩(则无需裁剪)
绘制看板线,TC柜内横板填充,AA调出咖啡树铰链图库,放好动态铰链
调整下标注比例,然后DD快速标注,再细化一下把手,SY放大比例,就完成啦!
觉得树哥文章有用点个赞哦,工资还能加两毛,让小编更加有动力创作哈



©2024 深圳市海龙卓艺深化设计顾问有限公司 版权所有 粤ICP备19117065号-1